
Scorrevoli
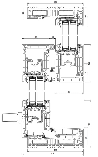
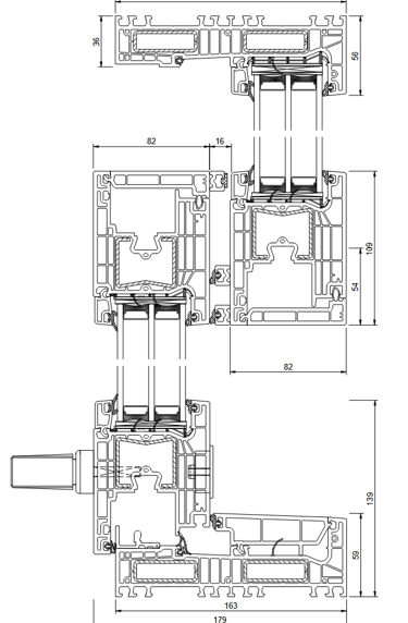
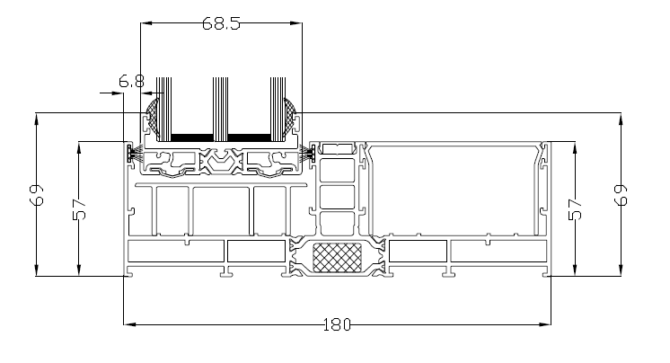
IGLO EDGE SLIDE
trasmittanza termica - Uw = 0,65 W/(m2K)*
guarnizioni in EPDM - 3
numero di camere - 6
pacchetto vetri - 48 mm/ 54 mm
profondità telaio - 163 mm
Doppia vetrocamera Ug = 0,5 W/(m2K)
Distanziale termico Swisspacer Ultimate
Saldatura V-Perfect
Guarnizioni esterne e fermavetro in colore nero o grigio
Guarnizione centrale in colore nero
Ricca coloristica pellicole PVC
Maniglia interna in alluminio
Vaschetta esterna in alluminio
Il nuovo sistema scorrevole si differenzia per alti valori di isolamento termico, ovvero Uw = 0,65 W/(m2K)* nonché un profilo moderno e squadrato coerente allo stile della linea Iglo Edge.
Equipaggiamento standard:




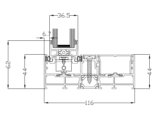
IGLO SLIDE
Il sistema è progettato per la realizzazione di portefinestre e finestre scorrevoli. Mediante l'utilizzo di moderne soluzioni tecnologiche, garantisce un elevato comfort di utilizzo e durata nel tempo. Risulta come soluzione ideale per ambienti in cui non è possibile l’utilizzo di tradizionali soluzioni di porte e finestre. IGLO SLIDE è dedicato ad ambienti dove non sono richiesti elevati parametri di isolamento termico.
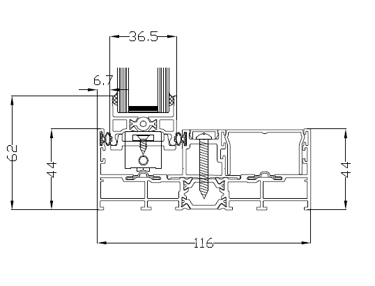
saldatura V-Perfect
Equipaggiamento standard:




profilo di classe - A
numero di camere - 3
pacchetto vetri - 20 mm/ 36 mm
profondità telaio - 82 mm
ferramenta Siegenia con regolazione dei carrelli in altezza
vetrocamera 24 mm, 2-vetri (1-camera) riempimento con argon, trasmittanza Ug = 1,1 W/(m²K)
distanziatore termico vetrocamera in acciaio zincato
saldatura V-Perfect
3 tipi di maniglie in alluminio
guarnizione a spazzola
guarnizioni in colore nero
2 mm spessore rinforzo per telaio ed anta
nelle portefinestre con larghezza oltre 2400mm doppia maniglia passante e cilindro

COR VISION
Sistema scorrevole minimalista a taglio termico, che offre la massima luminosità all'ambiente con una struttura in alluminio minimamente visibile.
La larghezza del montante in alluminio è di soli 20 mm e offre la possibilità di nasconderlo nel telaio.
trasmittanza termica - Uw = 1,3 W/(m2K)*
isolamento acustico - db = 41
pacchetto vetri - 26 mm/ 30 mm
profondità telaio - 116 mm/ 182 mm




COR VISION PLUS




La bellezza del minimalismo si riflette in questo sistema scorrevole in alluminio di grandi dimensioni con ante fino a 4 metri, con una larghezza del montante alla caduta dell'anta di soli 25 mm e telai incastonati sul perimetro, che consentono una vetratura fino al 94%.
Vetrificato con pacchetti di spessore fino a 54 mm, il sistema offre eccellenti prestazioni termiche e acustiche. CORE VISION PLUS è disponibile con sistema di apertura manuale (fino a 400 kg) o motorizzato (fino a 700 kg).
trasmittanza termica - Uw = 0,9 W/(m2K)*
isolamento acustico - db = 43
pacchetto vetri - 36 mm/ 56 mm
profondità telaio - 180 mm/ 278 mm


