
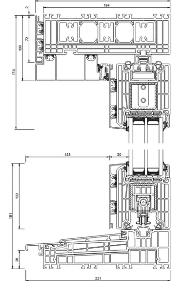
Alzanti-Scorrevoli HS
IGLO-HS
ferramenta alzante scorrevole G-U, dotata di 3 punti di chiusura
gancio per microventilazione
maniglia in alluminio all’interno, maniglione incassato dall’esterno
vetro a 3 lastre (a 2 camere) riempito con gas argon con valore di Ug=0,5W/(m²K)
distanziatore termico Swisspacer Ultimate, come opzione elettiva gratuita
guarnizione interna in velluto, guarnizione esterna in EPDM e guarnizione a spazzola nera
rinforzo del telaio realizzato con profilati di alluminio di alta qualità a taglio termico, rinforzo dell’anta: superiore e verticale - completo (chiuso) in acciaio di spessore di 2 mm; inferiore – in acciaio a forma di lettera „C” di spessore di 3 mm
nucleo del profilo nel colore bianco
carrelli di sistema con una capacità di carico di 300 kg
soglia bassa in PVC con rinforzo e sormonto in alluminio
La soluzione ideale per le vetrate di terrazze e balconi di grandi dimensioni e alla moda, in grado di conferire agli interni un carattere unico.
Grazie alla sua struttura estremamente robusta, in questo sistema scorrevole è possibile utilizzare ante fino a 400 kg di peso. L'eccellente funzionalità è garantita, tra l'altro, dall'uso di una soglia bassa in alluminio che può essere incassata a pavimento.
Equipaggiamento standard:






IGLO-HS ALUCOVER
Distanziatore termico vetro Swisspacer Ultimate
Fermavetro squadrato
Maniglia in alluminio
Saldatura a V-perfect
Verniciatura RAL opaca
Questo sistema di terrazze è stato sviluppato combinando le eccellenti prestazioni di isolamento termico del PVC con le migliori caratteristiche dell'alluminio.
L'ampia gamma di colori consente la realizzazione di uno stile personalizzato per qualsiasi interno o facciata.
Equipaggiamento standard:






MB-77HS HI
ferramenta alzante scorrevole G-U, dotata di 3 punti di chiusura
gancio per microventilazione
maniglia in alluminio all’interno, maniglione incassato dall’esterno
vetrocamera doppia (a 2 camera) riempita con gas argon con valore di Ug = 0,5 W/(m²K)
2 guarnizioni EPDM (esterna ed interna) in colore nero
carrelli di sistema con una capacità di carico di 300 kg
system carts with a load capacity of 300 kg
soglia telaio di altezza di 48 mm
colore RAL opaco: bianco (9016), antracite (7016)
Questi sistemi scorrevoli in alluminio risultano la soluzione ideale per le ampie vetrate di terrazze e balconi moderni, che conferiscono agli interni un carattere unico. Grazie alla loro struttura estremamente robusta, è possibile utilizzare ante fino a 400 kg di peso. L'eccellente funzionalità è garantita, tra l'altro, dall'uso di una soglia bassa in alluminio, che può essere incassata a pavimento.
Equipaggiamento standard:






