
Finestre in Alluminio
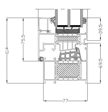
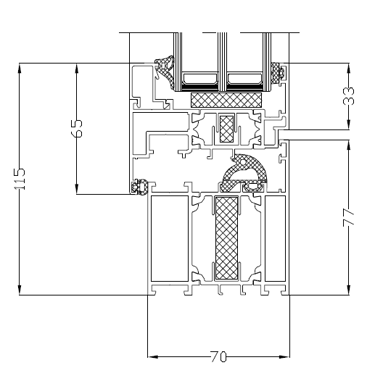
MB-86N SI
isolamento acustico -
guarnizioni in EPDM - 2
Uw = 0,76 W(m2K)
numero di camere - 3
profondità telaio - 77mm
ferramenta MACO MULTI-MATIC KS con 2 punti antieffrazione con un rivestimento anticorrosione Silber-Look che garantiscono una protezione duratura ed un buon funzionamento della ferramenta
sollevatore dell’anta (il meccanismo per falsa manovra della maniglia – a seconda della posizione della finestra)
microventilazione nelle finestre con apertura ad anta-ribalta
copricerniere in 3 colori: bianco, argento, marrone
maniglia in alluminio
vetrocamera doppia (a 1 camera) riempita con gas argon con valore di Ug = 1,1 W/(m²K)
distanziatore termico Swisspacer Ultimate, come opzione elettiva gratuita
1 guarnizione EPDM (esterna e interna) + 1 guarnizione centrale in schiuma EPDM in colore nero
colore RAL opaco: bianco (9016), antracite (7016)




La nostra nuova finestra, tecnologicamente avanzata, si distingue per i suoi eccellenti parametri di trasmittanza termica Uw = 0,66 W/(m2K)* e per il suo design moderno, squadrato. Il raggiungimento di eccellenti parametri termici deriva dalla sua struttura del profilo a 7 camere e 3 guarnizioni in EPDM, di cui una pinna centrale.
Equipaggiamento standard:































Colori delle finestre in Alluminio
La nuova linea di infissi in alluminio con maggiore isolamento termico, dotati di inserti isolanti e una guarnizione centrale bicomponente contruisce al risparmio notevole sulle bollette per riscaldamento. Design moderno, oltre 200 colori combinati con vasta gamma di opzioni aggiuntive soddisferanno i clienti più esigenti.
Equipaggiamento standard:




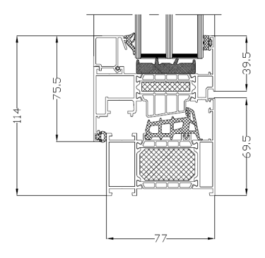
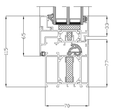
isolamento acustico -
guarnizioni in EPDM - 2
Uw = 0,81 W(m2K)
numero di camere - 3
profondità telaio - 70mm
RISPARMIO ENERGETICO
ferramenta MACO MULTI-MATIC KS con 2 punti antieffrazione con un rivestimento anticorrosione Silber-Look che garantiscono una protezione duratura ed un buon funzionamento della ferramenta
sollevatore dell’anta (il meccanismo per falsa manovra della maniglia – a seconda della posizione della finestra)
microventilazione nelle finestre con apertura ad anta-ribalta
copricerniere in 3 colori: bianco, argento, marrone
maniglia in alluminio
vetrocamera doppia (a 1 camera) riempita con gas argon con valore di Ug = 1,1 W/(m²K)
distanziatore termico Swisspacer Ultimate, come opzione elettiva gratuita
1 guarnizione EPDM (esterna e interna) + 1 guarnizione centrale in schiuma EPDM in colore nero
colore RAL opaco: bianco (9016), antracite (7016)
MB-79N SI
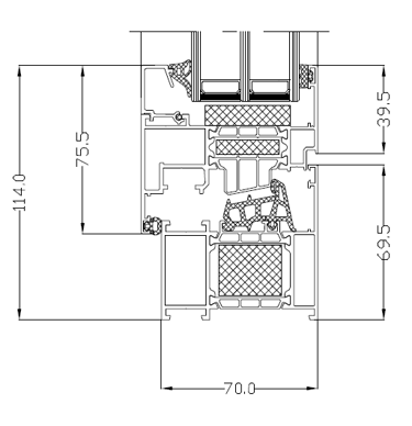
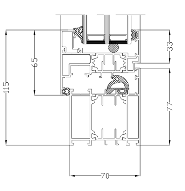
MB-70 HI
Le finestre in alluminio realizzate in sistema MB-70HI trovano la loro applicazione sia per il residenziale che per facciate in alluminio. La sua struttura leggera e resistente garantisce un elevato comfort di utilizzo.
Equipaggiamento standard:




isolamento acustico -
guarnizioni in EPDM - 3
Uw = 0,96 W(m2K)
numero di camere - 3
profondità telaio - 70mm
ferramenta MACO MULTI-MATIC KS con 2 punti antieffrazione con un rivestimento anticorrosione Silber-Look che garantiscono una protezione duratura ed un buon funzionamento della ferramenta
sollevatore dell’anta (il meccanismo per falsa manovra della maniglia – a seconda della posizione della finestra)
microventilazione nelle finestre con apertura ad anta-ribalta
copricerniere in 3 colori: bianco, argento, marrone
maniglia in alluminio
vetrocamera doppia (a 1 camera) riempita con gas argon con valore di Ug = 1,1 W/(m²K)
distanziatore termico Swisspacer Ultimate, come opzione elettiva gratuita
1 guarnizione EPDM (esterna e interna) + 1 guarnizione centrale in schiuma EPDM in colore nero
colore RAL opaco: bianco (9016), antracite (7016)
Lavorazione di altissima qualità e durata nel tempo
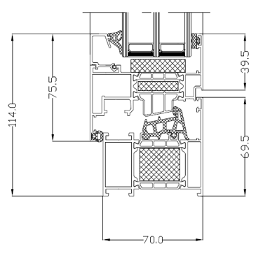
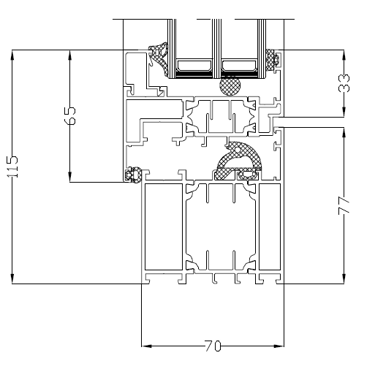
MB-70
Le finestre in alluminio realizzate con questo sistema si adattano perfettamente a tutte le condizioni atmosferiche.
La qualità della verniciatura delle finestre in alluminio è curata dal nostro impianto di verniciatura a polvere, uno dei piu moderni al mondo. I sistemi MB-70 rappresentano finestre in alluminio in grado di soddisfare le tue aspettative.
Equipaggiamento standard:




isolamento acustico -
guarnizioni in EPDM - 3
Uw = 1,06 W(m2K)
numero di camere - 3
profondità telaio - 70mm
ferramenta MACO MULTI-MATIC KS con 2 punti antieffrazione con un rivestimento anticorrosione Silber-Look che garantiscono una protezione duratura ed un buon funzionamento della ferramenta
sollevatore dell’anta (il meccanismo per falsa manovra della maniglia – a seconda della posizione della finestra)
microventilazione nelle finestre con apertura ad anta-ribalta
copricerniere in 3 colori: bianco, argento, marrone
maniglia in alluminio
vetrocamera doppia (a 1 camera) riempita con gas argon con valore di Ug = 1,1 W/(m²K)
distanziatore termico Swisspacer Ultimate, come opzione elettiva gratuita
1 guarnizione EPDM (esterna e interna) + 1 guarnizione centrale in schiuma EPDM in colore nero
colore RAL opaco: bianco (9016), antracite (7016)
Soluzioni collaudate per garantire il maggior confort d'utilizzo
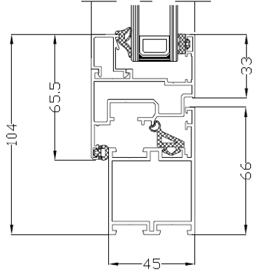
MB-45
Le finestre in alluminio realizzate con questo sistema sono dedicate all'installazione interna.
Il sistema di finestre è dotato di ferramenta di alta qualita’ ed una ricca gamma di oltre 200 colori che permette di abbinare i serramenti a qualsiasi stile architettonico.
Equipaggiamento standard:




isolamento acustico -
guarnizioni in EPDM - 2
numero di camere - 2
profondità telaio - 45 mm
ferramenta MACO MULTI-MATIC KS con 2 punti antieffrazione con un rivestimento anticorrosione Silber-Look che garantiscono una protezione duratura ed un buon funzionamento della ferramenta
sollevatore dell’anta (il meccanismo per falsa manovra della maniglia – a seconda della posizione della finestra)
microventilazione nelle finestre con apertura ad anta-ribalta
copricerniere in 3 colori: bianco, argento, marrone
maniglia in alluminio
vetrocamera doppia (a 1 camera) riempita con gas argon con valore di Ug = 1,1 W/(m²K)
distanziatore termico Swisspacer Ultimate, come opzione elettiva gratuita
2 guarnizione EPDM in colore nero
colore RAL opaco: bianco (9016), antracite (7016)


